Котел на опилках 0.6 МВт в Абае

На опилках котел 0.6 МВт
Котел на опилках 0.6 МВт
Котел на опилках 0.6 МВт чертеж
Чертеж котла на опилках 0.6 МВт
Котел 0.6 МВт на опилках автоматический
Автоматический котел на опилках 0.6 МВт
Котел твердотопливный на опилках 0.6 МВт
Твердотопливный котел на опилках 0.6 МВт
Котел на опилках отопительный 0.6 МВт
Отопительный котел на опилках 0.6 МВт
Котел  0.6 МВт на опилках с автоматической подачей
Котел на опилках 0.6 МВт с автоматической подачей
Питатель плунжерный котла 0.6 МВт на опилках
Плунжерный питатель котла 0.6 МВт на опилках
Подача плунжерная
Плунжерная подача
Живое дно бункер
Бункер Живое дно
Склад механизированный Живое дно
Механизированный склад Живое дно
На опилках котел 0.6 МВт
Котел на опилках 0.6 МВт чертеж
Котел 0.6 МВт на опилках автоматический
Котел твердотопливный на опилках 0.6 МВт
Котел на опилках отопительный 0.6 МВт
Котел  0.6 МВт на опилках с автоматической подачей
Питатель плунжерный котла 0.6 МВт на опилках
Подача плунжерная
Живое дно бункер
Склад механизированный Живое дно
Цена
11 403 480 ₸
От 11 403 480 ₸ с доставкой до г.
  • Автоматический и ручной режим работы
  • Эффективная работа на сырых и прессованных опилках, стружке, коре влажностью до 60%, с возможностью сжигания дров в ручном режиме
  • Вихревой режим работы с полным догоранием топлива
  • Автоматизированная регулировка подачи топлива и требуемых параметров теплоносителя
  • Система безопасности от воспламенения топлива

Технические характеристики котла на опилках 0.6 МВт

МаркаКотел КВм ДО 0.6 МВт
ВидВодогрейный
Тип отопительного котлаТвердотопливный
БрендHEATEXPERT
ТипКотел КВм ДО
Вид топкиВихревая, Автоматическая
Максимальная тепловая мощность0.6 МВт
Максимальная тепловая мощность600 кВт
Максимальная тепловая мощность0.52 Гкал
Диапазон регулирования мощности50-100 %
ТопливоТвердое, Опилки
Низшая теплота сгорания проектного топлива2440 кКал/кг
Влажность топлива50 %
КПД котла на ОПИЛКАХ, не менее80 %
Расход ОПИЛОК среднечасовой за отопительный сезон146 кг/ч
Расход ОПИЛОК при максимальной нагрузке котла256 кг/ч
Расход условного топлива89 кг/ч
Минимальная температура воды на входе в котел55 °С
Максимальная температура воды на выходе из котла115 °С
Давление воды, не более0.3-0.6 (3-6) МПа (кгс/см²)
Номинальный расход теплоносителя21 м³/ч
Расход теплоносителя через котел min-max17-27 м³/ч
Гидравлическое сопротивление при номинальном расходене более 0.07 (0.7) МПа (кгс/см²)
Аэродинамическое сопротивление100 (10) Па (мм. вод. ст.)
Разряжение в топочной камере20-40 (2-4) Па (мм. вод. ст.)
Объем уходящих газов3300 м³/ч
Температура уходящих газов220 °С
ТягаУравновешенная
Водяной объем котла500 л
Объем топочной камеры1.37 м³
Размер топочной камеры, длина*ширина*высота1225х660х2060 мм
Присоединительные размеры по водяному тракту100 Ду
Присоединительные размеры газохода уходящих газов, ширина*высота / сечение600х200 / 0.12 мм/м²
Габаритные размеры блока, длина*ширина*высота2245х1360х2250 мм
Габаритные размеры установки, длина*ширина*высота2480х2600х2250
Масса1700 кг
Конструкция котлаВодотрубная
Количество контуровОдноконтурный
РазмещениеНапольный
Тип камеры сгоранияОткрытый
УправлениеЭлектронное
Принцип работы твердотопливного котлаКлассический
ЭнергонезависимыйНет
Тип питанияТрехфазное
Встроенный циркуляционный насосНет
Встроенный расширительный бакНет
Отапливаемая площадьот 4700 до 6700 м²
Отапливаемый объемот 13900 до 19900 м³
ЭнергоэффективностьВысокая

Котел на опилках 0.6 МВт с автоматической подачей в Абае

Промышленный твердотопливный котел на опилках 0.6 МВт с автоматической подачей наиболее востребован на предприятиях деревообработки для сушки древесины, лесопилках, пилорамах, лесхозах, мебельных и погонажных производствах для технологических нужд, а также для отопления и горячего водоснабжения. Отопление опилками, остающимися после изготовления ваших изделий, принесет значительную экономию при теплоснабжении ваших предприятий. Автономная работа котла 0,6 МВт на опилке не требует больших усилий со стороны кочегара, все процессы настраиваются и поддерживаются при помощи автоматики.

Теплогенератор работает на сырых и прессованных опилках, щепе, стружке, в ручном режиме возможна загрузка дров, поленьев, крупнокусковых отходов. Агрегат нагревает воду до 95 – 115 градусов с давлением теплоносителя 0,3 – 0,6 МПа.

Твердотопливный котел 0.6 МВт на опилках устройство

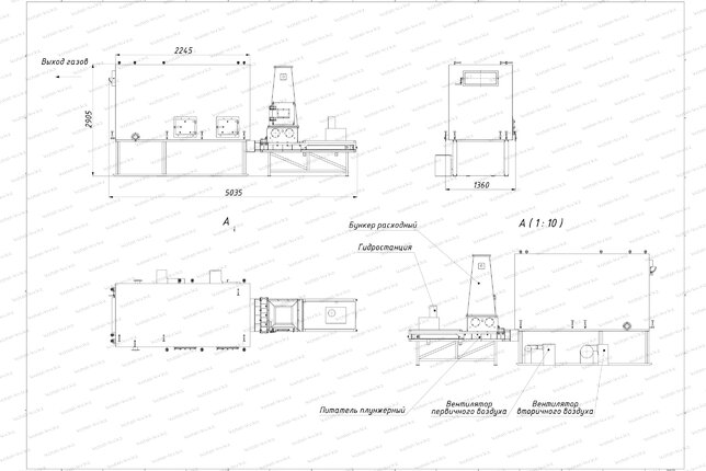
Отопительный котел 0,6 МВт на опиле - водотрубный, гладкотрубный, газоплотный, напольный изготавливается в горизонтальном расположении со шнековой подачей, вихревой топкой и бункером.

Агрегаты работают в автоматическом режиме. Автоматика осуществляет запуск, остановку, регулировку давления и температуры теплоносителя, подачу необходимого количества воздуха, пожаротушение в случае воспламенения топлива в топливопроводе. Для необходимости сжигания крупногаборитных отходов автоматика переключается в ручной режим работы.

Водогрейный котел 0.6 МВт со шнековой подачей древесных отходов состоит из котельного блока с конвективными пакетами, вихревой топки, шнекового питателя, бункера.

Шнековый питатель с бункером крепиться к котельному блоку. В зависимости от расположения котлоагрегата в котельной, крепление шнека с бункером может быть справа, либо слева. Чтобы исключить зависание топлива, бункер оснащен ворошителем.

Подача топлива в топку производится шнековым питателем. Подача топлива регулируется скоростью вращения шнека. Автоматический котел 0 6 МВт для отопления производит предварительную подсушку сырых опилок. Это помогает избежать температурных колебаний в работе котла на протяжении отопительного сезона. При заклинивании шнека автоматически включается реверсивное движение. Охлаждение выходного узла препятствует воспламенению топлива.

Пожаробезопасность обеспечивается клапанами системы пожаротушения, прибороми контроля давления в системе пожаротушения и температуры топливопровода.

Вихревая топка

Производственный шнековый котел 0.6 МВт подходит для сжигания сырых опилок с влажностью до 60 %. Высокая температура в топке способствует сушке топлива, быстрому загоранию и устойчивому горению.

Вихревой метод горения способствует полному выгоранию топлива мелких и крупных фракций. При попадании в воздушный поток мелкие частицы направляются в центр топки и сгорают во взвешенном состоянии. Крупные фракции постепенно скатываются к центру и более легкие, подсушенные выбрасываются в центр топки. Таким образом, в вихревой топке происходит полное сжигание топлива.

Часть топочной камеры занимает водоохлаждаемая решетка. Дрова – объемное топливо, требующее для лучшего горения достаточное количество кислорода. Поэтому закладку дров лучше делать на водоохлаждаемую решетку. Отверстия, расположенные на решетке полностью обеспечивают кислородом топливный слой.

Комплект поставки

Цена на напольные котлы 0,6 МВт на опилках включает базовую комплектацию. В состав базовой комплектации входит: вентилятор поддува, бункер с шнеком, затворы, предохранительные клапаны, вентили, манометры, термометры, трехходовые краны.

Дополнительная комплектация

  • автоматика – обеспечивает управление и безопасность котла;
  • циркуляционный насос - обеспечивает циркуляцию воды в котлоагрегате;
  • подпиточный насос – позволяет пополнять объем теплоносителя в контуре;
  • дымосос – создает разряжение в котле и исключает попадание дыма в помещение;
  • золоуловитель – применяется для улавливания золы из дымовых газов.

Купить котел 0.6 МВт на опилках

Для того, что бы купить котел 0.6 МВт на опилке в Абае вы можете сделать заявку по телефону +7-7172-69-59-73, либо оформить заявку онлайн. Менеджеры дадут консультацию по подбору вспомогательного оборудования для выбранных вами моделей и рассчитают стоимость доставки. Транспортирование котлоагрегата и вспомогательного оборудования до объекта осуществляется автомобильным транспортом.

Комплект поставки котла на опилках 0.6 МВт

Вентилятор
ВР280-26 №2,5 с дв. 0,75/3000
1 штука
Вентилятор
ВР280-46 №2 с дв. 0,37 кВт/1500
1 штука
Нет фото
Шнековый питатель
1 штука
Бункер под древесное топливо
Бункер древесного топлива
1 штука
Затвор Ду 100
Затвор Ду 100
2 штуки
Клапан предохранительный Ду 40
Клапан Ду 40
2 штуки
Клапан обратный
Клапан обратный
1 штука
Манометр МП 160
Манометр МП 160
2 штуки
Кран трехходовой ДУ 15
Кран Ду 15
2 штуки
Термометр ТТЖО
Термометр ТТЖО
2 штуки
Оправа термометра ОПТ
Оправа ОПТ
2 штуки
Вентиль Ду 15
Вентиль Ду 15
5 штук
Вентиль Ду 20
Вентиль Ду 20
9 штук

Вспомогательное оборудование для работы котла на опилках 0.6 МВт

Насос К консольный
К 65-50-160а
Цена 388 596 тг.
Насос К консольный
К 50-32-125
Цена 283 656 тг.
Насос TD
Насос TD40-36G2 (5.5 кВт)
Цена 1 225 572 тг.
Насос CHL
Насос CHL2-40 (0.55 кВт)
Цена 368 880 тг.
Дымосос ДН 3.5
Цена 355 524 тг.
Золоуловитель ЗУ 0.6
Цена 286 200 тг.
Дымосос ДН 6.3
Цена 644 904 тг.

Аналоги котла на опилках 0.6 МВт

0.6 МВт котел на дровах
Котел на дровах 0.6 МВт
Вид топкиРучная, Колосники, ОУР
Максимальная тепловая мощность, МВт0.6
ТопливоТвердое, Дрова
Отапливаемая площадь, м²от 4700 до 6700
Цена 4 216 680 тг.
На древесных отходах котел 0.6 МВт
Котел на древесных отходах 0.6 МВт
Вид топкиРучная, Подовая
Максимальная тепловая мощность, МВт0.6
ТопливоТвердое, Дрова, Древесные отходы естественной влажности
Отапливаемая площадь, м²от 4700 до 6700
Цена 4 598 280 тг.
Котел уголь дрова 0.6 МВт
Котел 0.6 МВт уголь дрова
Вид топкиРучная, Колосники, ОУР
Максимальная тепловая мощность, МВт0.6
ТопливоТвердое, Уголь, Дрова
Отапливаемая площадь, м²от 4700 до 6700
Цена 4 127 640 тг.
Котел КВр-0.6 К
Котел КВр 0.6 МВт
Вид топкиРучная, Колосники
Максимальная тепловая мощность, МВт0.6
ТопливоТвердое, Уголь
Отапливаемая площадь, м²от 4700 до 6700
Цена 3 930 480 тг.
На опилках котел 0.5 МВт
Котел на опилках 0.5 МВт
Вид топкиВихревая, Автоматическая
Максимальная тепловая мощность, МВт0.5
ТопливоТвердое, Опилки
Отапливаемая площадь, м²от 3900 до 5500
Цена 9 552 720 тг.
На опилках котел 0.7 МВт
Котел на опилках 0.7 МВт
Вид топкиВихревая, Автоматическая
Максимальная тепловая мощность, МВт0.7
ТопливоТвердое, Опилки
Отапливаемая площадь, м²от 6200 до 8900
Цена 12 624 600 тг.

Сертификат и качество котла на опилках 0.6 МВт

Сертификат на водогрейные котлы на твердом и жидком топливе
Сертификат на водогрейные котлы на твердом топливе

Собственное производство

Котельный завод производит
  • Паровые котлы от 300 кг до 2.5 тонны пара в час
  • Промышленные водогрейные котлы от 150 КВт до 4 МВт на всех видах топлива
  • Механические топки ТШПМ, шурующая планка и ТЛПХ, ленточное полотно прямого хода
  • Циклоны для очистки воздуха и дымовых газов для производств и промышленных отраслей
  • Транспортеры и системы топливоподачи и шлакоудаления
Подробнее о производстве
Собственное производство
Смотреть видео
с производства